Casa - Venda em Blumenau

Itoupava Central, Blumenau, Santa Catarina

Em Construção
Casa - Venda - Itoupava Central - Blumenau - SC

Residencial Grey Finder - Casa 4

Cód. Referência: 630
Perfil: Novo
Mobília: Não Mobiliado
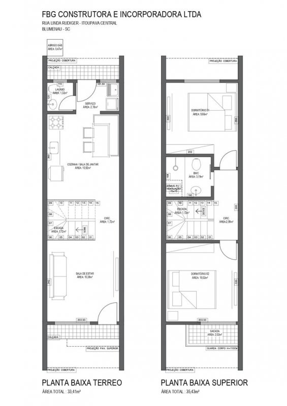
  • 2 dormitórios
  • 1 banheiro
  • 1 sala
  • 1 lavabo
  • 2 garagens
Ano da Construção: 2021
Financiamento: Sim
Simular Financimento

Medidas

Área Total: 69,31 m²
Área Privativa: 69,31 m²
Área Construída: 69,31 m²
Terreno Área Total: 94,25 m²

Localização

Valor de venda: R$ 330.000,00Valor sujeito a alteração

Compartilhe com seus amigos:

Descrição

Sobrado Geminado, com vaga para dois veículos, sala de estar, lavabo, cozinha, área de serviço, bwc, dois dormitórios. Espaço nos fundos. Loteamento D. Isa.

Entrega em junho/2025..

Incorporação R 4 - 36.205 3o ofício

Casa 4

Possibilidade de financiamento e entrada com o construtor.

O que tem perto?

  • Comércio
  • Escolas Públicas
  • Farmácia
  • Ponto de Oníbus
  • Posto de Saúde

Cronograma da Obra

  • Pronto para morar
    0%
  • Obras iniciadas
    69%
  • Escavações
    100%
  • Contenções
    100%
  • Fundações
    100%
  • Estrutura
    100%
  • Alvenaria
    100%
  • Instalações
    68%
  • Revestimento interno
    51%
  • Revestimento externo
    8%
  • Acabamento
    15%
  • Finalização
    7%

Mais informações

Imóveis Similares

Me Chame no WhatsApp